
个人简历
王仲胥,男,汉族,中国共青团团员,来自土木建筑学院给水1602班,学习刻苦,工作认真。
毕业设计简介
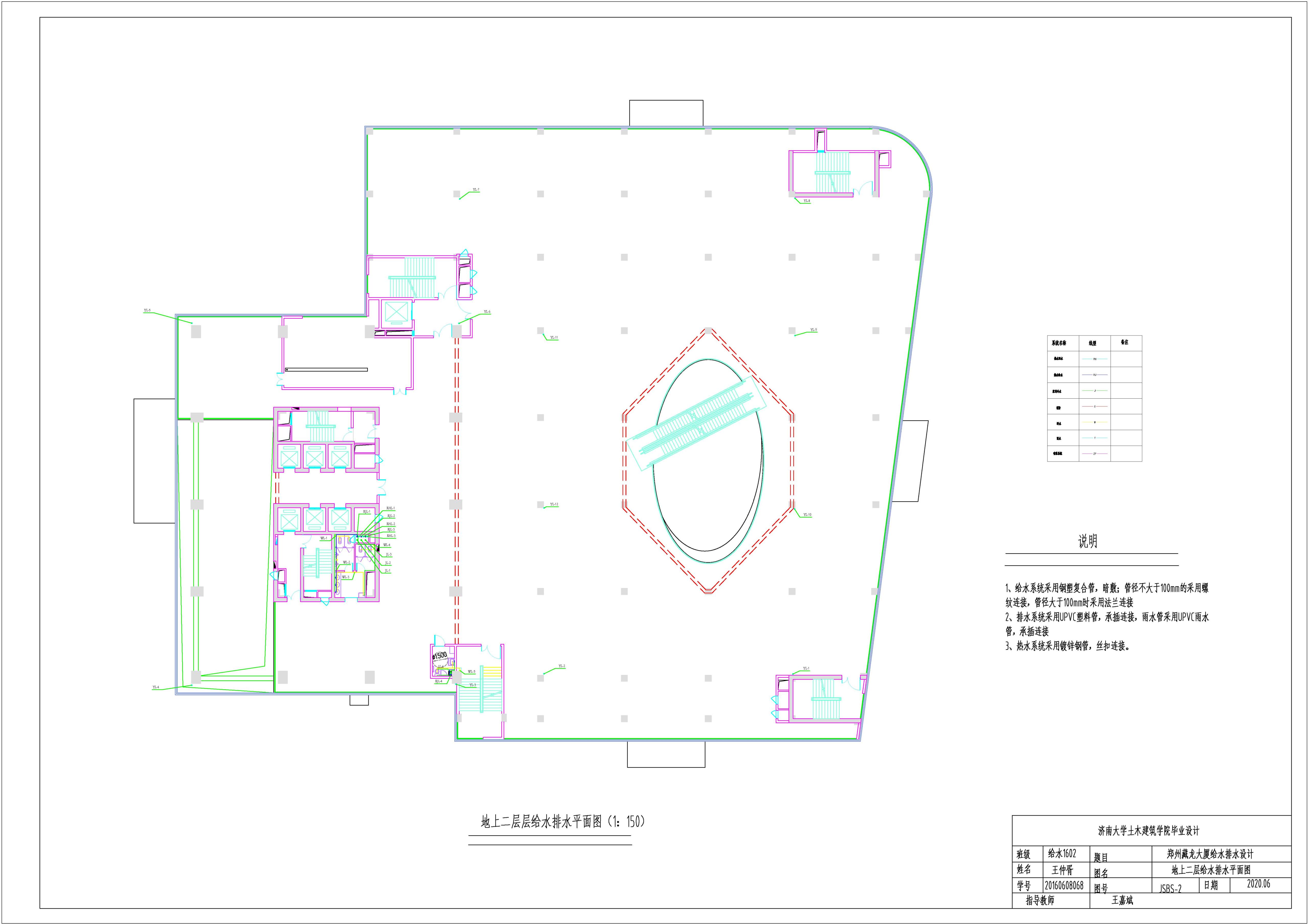
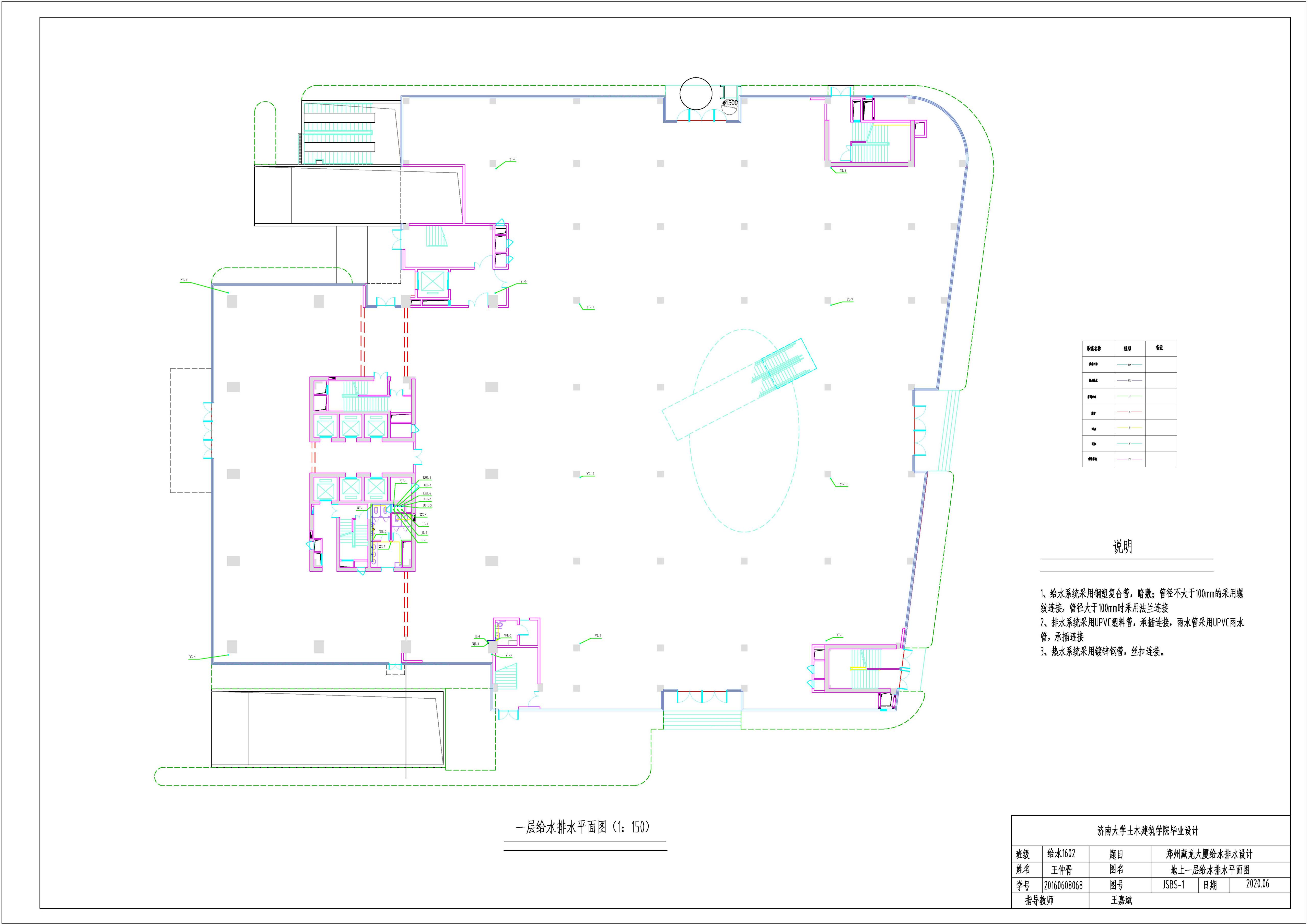
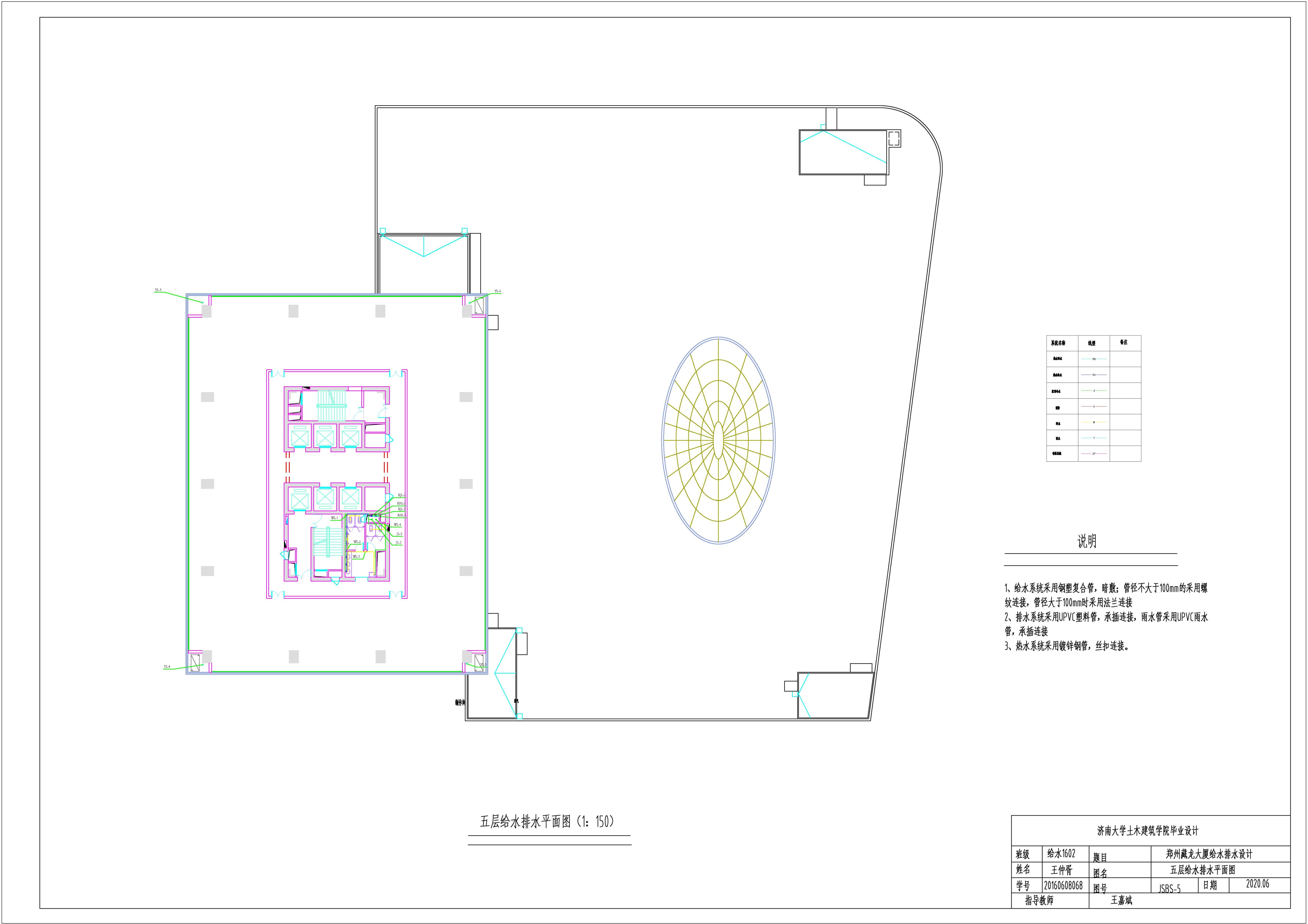
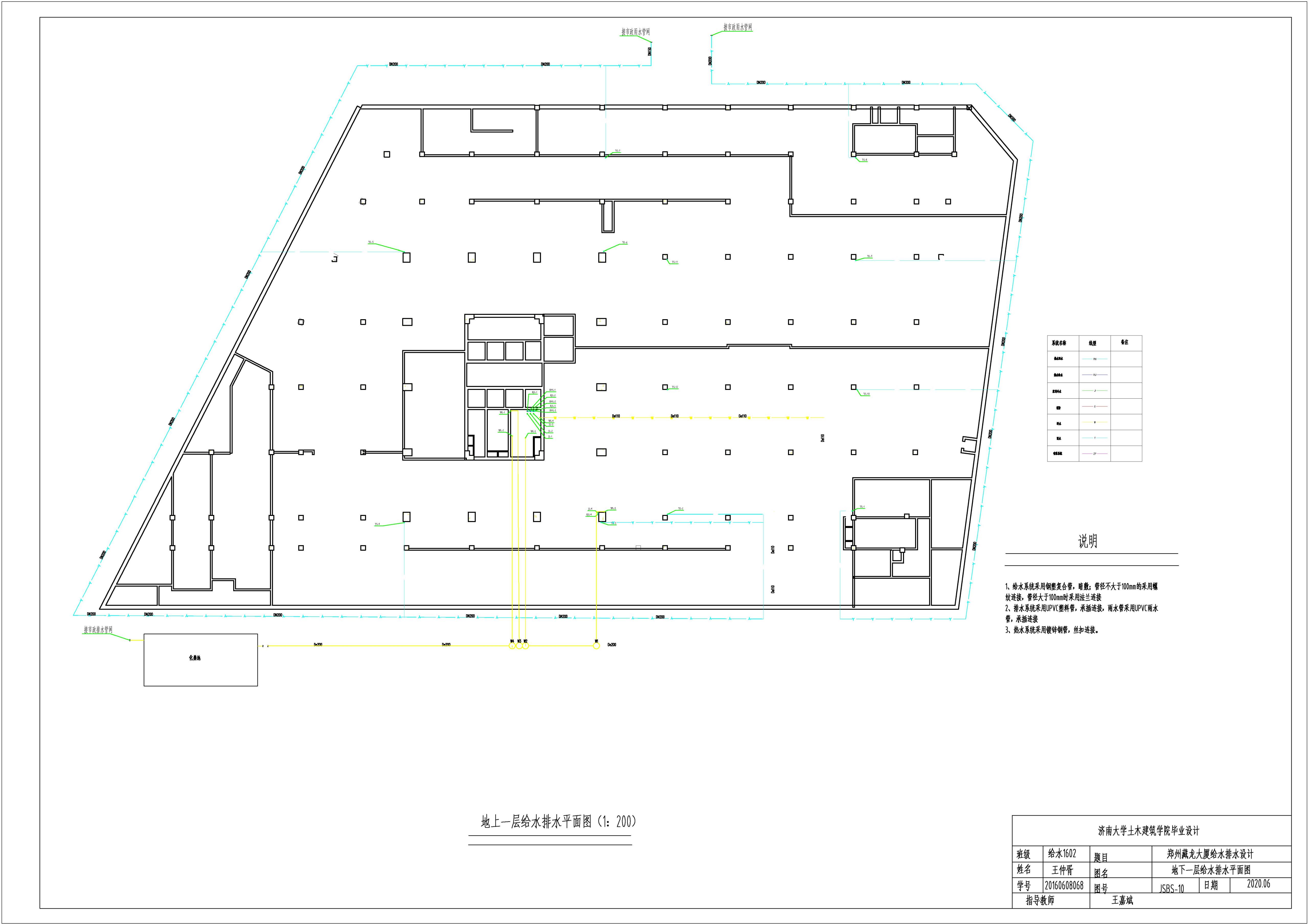
题目:郑州藏龙大厦给水排水设计
指导老师:王嘉斌
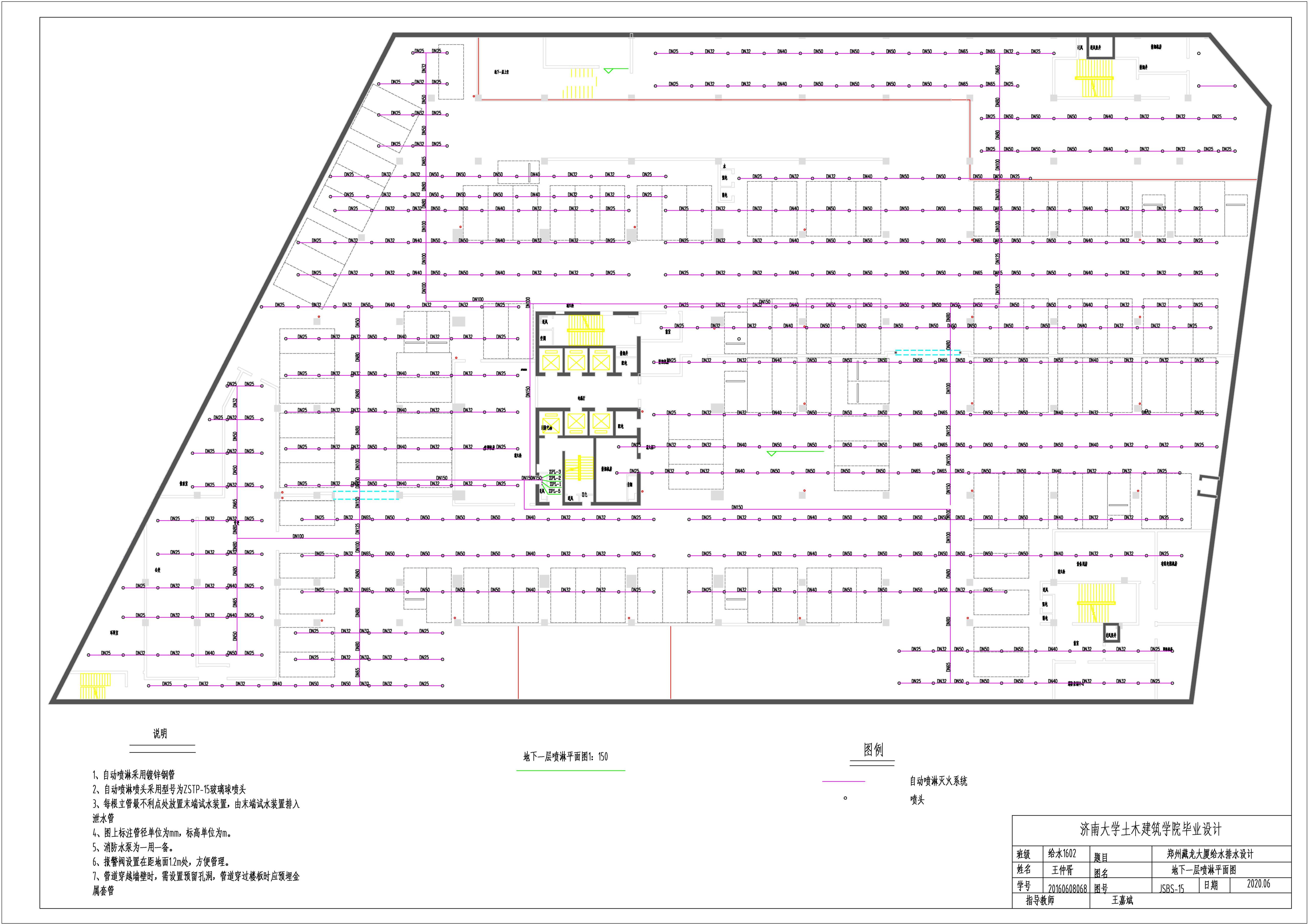
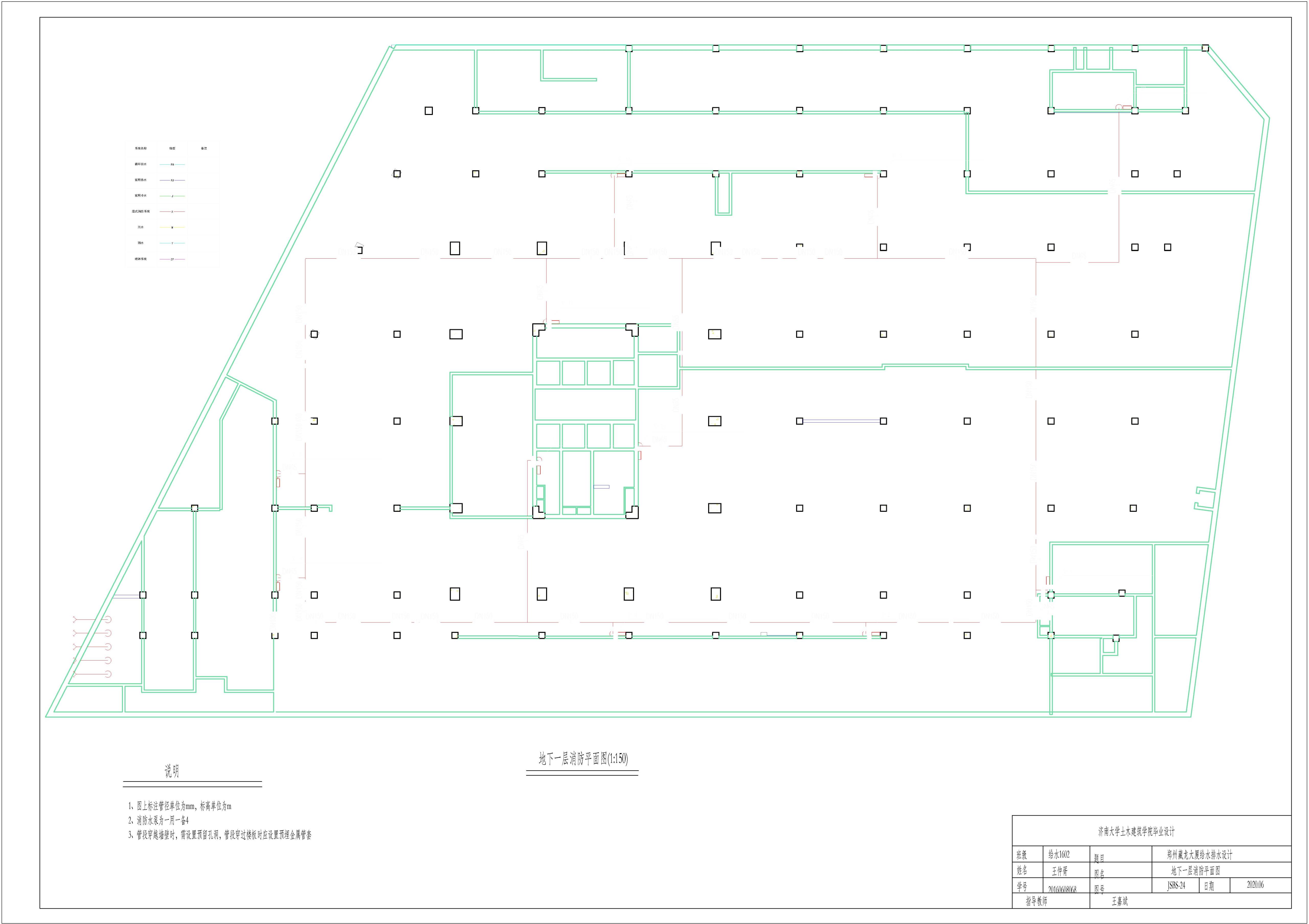
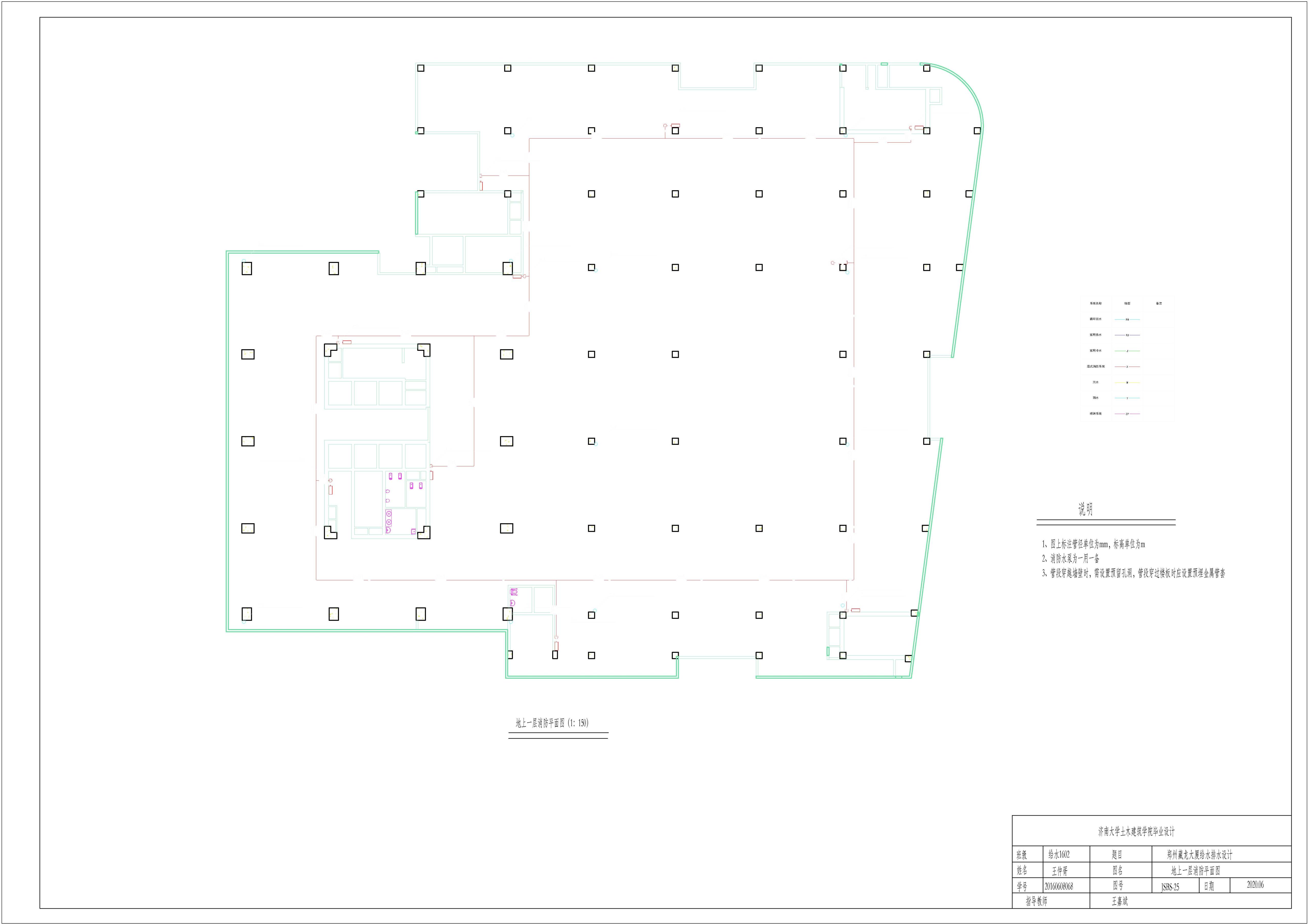
设计简介:本设计运用BIM技术进行毕业设计的全程设计,运用Revit软件进行全部设计。本设计是二十七层的综合性高层建筑的建筑给水排水设计,其中包含:给水系统、排水系统、雨水系统、自动喷淋灭火系统,消防栓系统以及热水包括热水循环系统。给水系统采用竖向分区,分为高、中、低三个区进行供给。一层到三层为低区,由市政管网直接供水;地上四层到地上十五层为中区,由生活泵房内的变频水泵直接提供;十六层到二十六层为高区,由水泵房内变频水泵直接提供。排水系统采用污废水合流排放,地上二层及以上的污废水由重力自流到地下一层排出室外,地上一层单独设置排出。热水系统采用竖向分区供水,分区方式与生活给水系统分区一致,热源系统采用市政蒸汽,同时设置热水循环系统,生活泵房设置在地下一层。雨水排水系统采用单雨水斗排水系统,按照郑州当地的暴雨强度与重现期选取雨水计算参数,进行雨水的设计,流入室外雨水检查井,并排入雨水管网。消防系统用水采用消防水池,消防水池放置在地下二层中。消防水箱设置在屋顶机房层。消火栓系统水平管各层成环,自动喷淋灭火系统由地下二层消防水泵直接供水,与室内消防栓灭火系统共用消防水泵。































